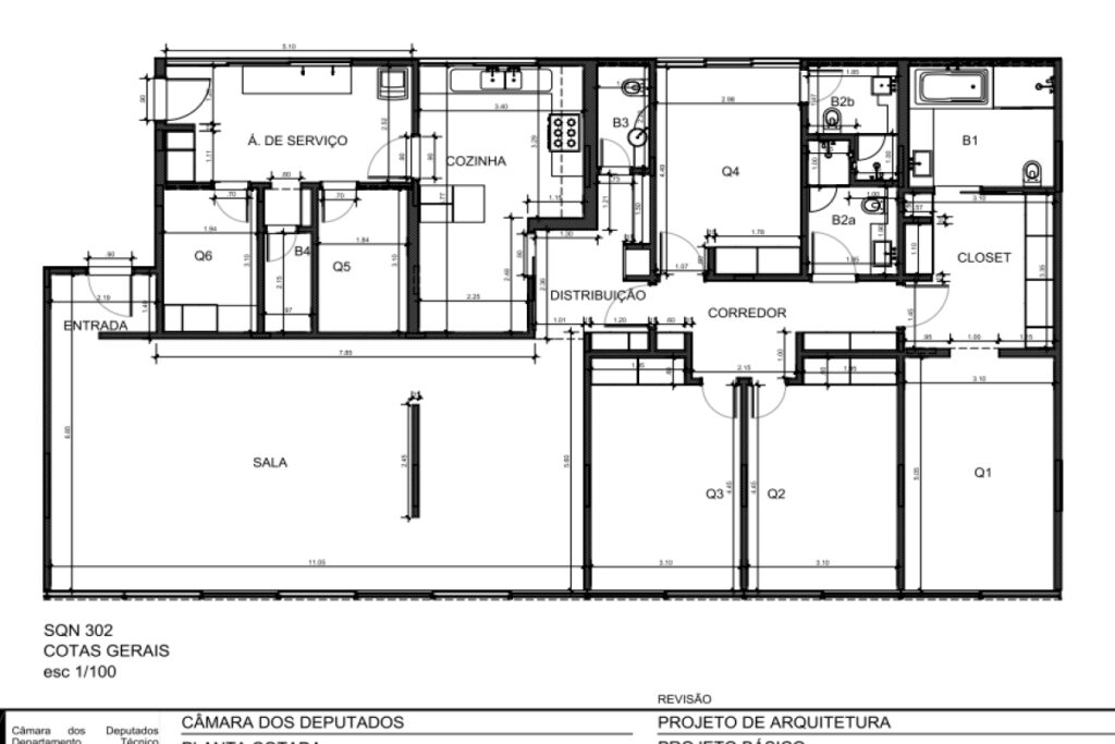
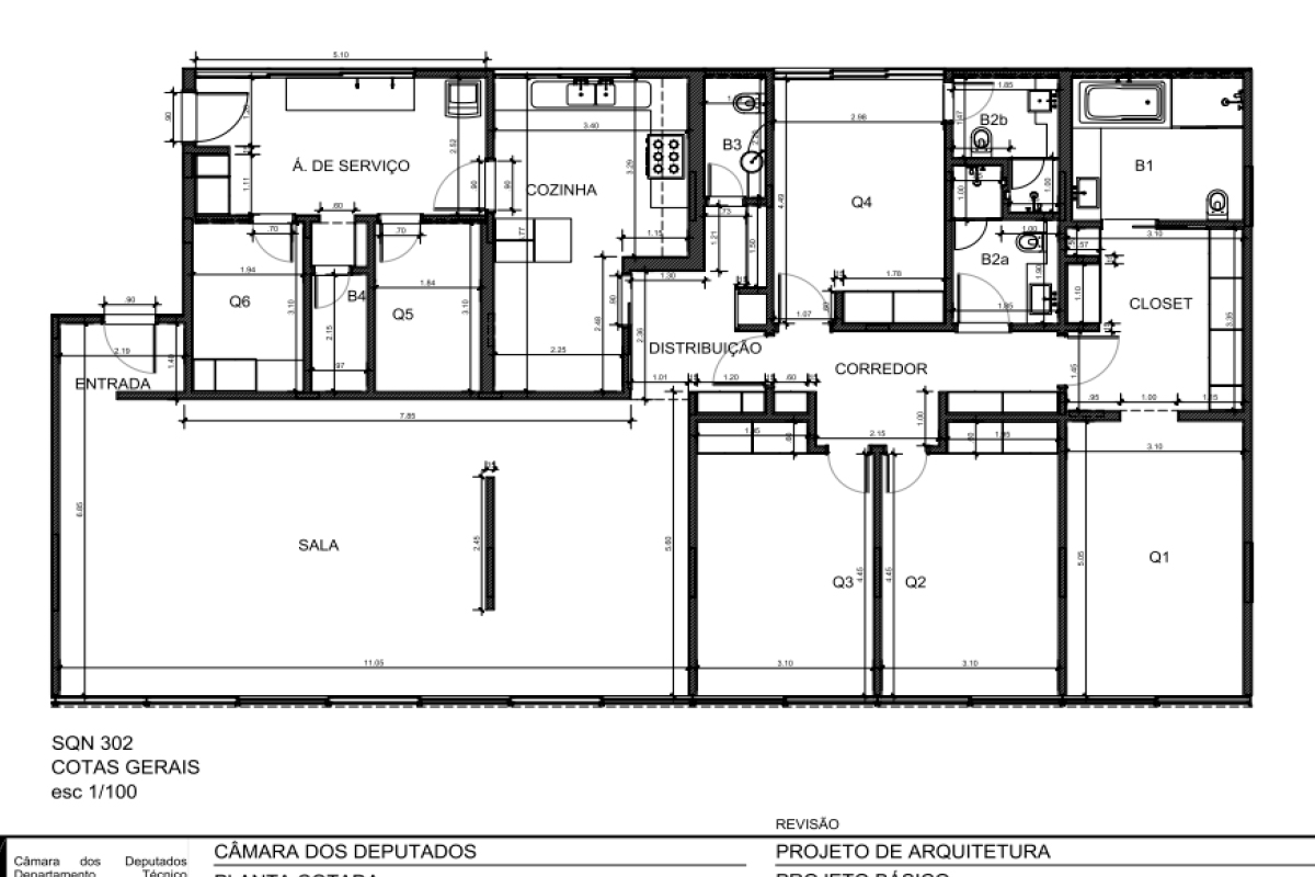
Compartilhar Facebook Twitter Email Copy Link WhatsApp Imóveis funcionais têm quatro quartos e cerca de 220 m² cada; Câmara tem projeto para divisão das unidades Fonte: